Фланцеві з’єднання Smart Joint з механічним блокуванням кінців труб
Фланцеві з’єднання з механічним блокуванням труб Smart Joint забезпечують ідеальне і швидке з’єднання труб з будь-якого матеріалу, з різницею між зовнішнім діаметром труб в діапазоні до 26 мм, з фланцевими засувками, клапанами, редукційними клапанами, гідрантами і т.д.
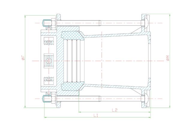
Технічні характеристики:
– Довжина від 170 до 190 мм;
– затискні фланці та фланцевий корпус із чавуну GGG 50;
– Гумові ущільнення EPDM;
– оцинковані болти, гайки, шайби (під замовлення виготовляються з нержавіючої сталі INOX AISI 304);
– епоксидне антикорозійне покриття RAL Blue.
| Модель | макс. хв. зовнішній Ø труб, мм | Довжина, мм | |
| макс. | i | ||
| СМ-74-58 | 74 | 58 | 170 |
| СМ-84-68 | 84 | 68 | 170 |
| СМ-105-84 | 105 | 84 | 170 |
| СМ-118-99 | 118 | 99 | 170 |
| СМ-133-109 | 133 | 109 | 170 |
| СМ-157-133 | 157 | 133 | 190 |
| СМ-182-157 | 182 | 157 | 190 |
| СМ-215-194 | 215 | 194 | 190 |
| СМ-242-218 | 242 | 218 | 190 |
| СМ-268-242 | 268 | 242 | 190 |
| СМ-291-266 | 291 | 266 | 190 |
| СМ-305-280 | 305 | 280 | 190 |
| СМ-327-302 | 327 | 302 | 190 |
Smart Joints інструкція зі встановлення:
- Очистіть місце країв труб, де буде прокладка.
- Розташуйте муфту на розтрубних кінцях і посуньте її на трубу.
- Відцентруйте муфту на кожному розтрубному кінці (краю) труби.
- Заблокуйте болти хрест – навхрест, тримаючи їх паралельно один до одного так, щоб забезпечити правильне стиснення прокладки.
- Закручуються болти, після чого трубопровід подається тиск.
Рекомендоване зусилля, що скручує: болти М12: 40 Н/м
Максимальне кутове зміщення: 4° на кожну сторону
Максимальна робоча температура: 70 ° С





