Затворні клапани з нержавіючої сталі
Мод. KRX 15; KRX 610; KRX 1120
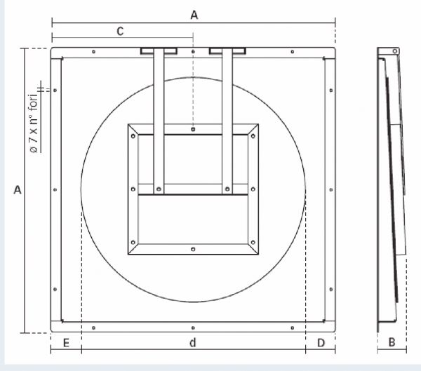
Клапани призначені для встановлення на цементні стіни. Клапан складається з квадратного корпусу з отворами кріплення, а також з легкозамінної круглої пластини з шарнірною системою руху.
Шарнірна система складається з однієї зварювальної втулки, розташованої на пластині, з’єднаної болтами M10x120 з нержавіючої сталі A2 AISI 304, з самоблокувальною гайкою до одного U – образного звареного профілю в замкнутій секції.
Клапан виготовлений повністю з нержавіючої сталі 20/10 A2 AISI 304 та розроблений за наступними виробничими процесами:
– лазерне різання та згинання за допомогою CNC машини;
– зварювальний процес із застосуванням TIG матеріалу;
– антикорозійне оброблення зварних швів;
– складальні компоненти та аксесуари;
– тестування, розмірів та функціональності.
Технічні характеристики:
– розширювальні болти HILTI HAS – R M6x 50/-/5 з нержавіючої сталі, з кількістю вказаною для кожної моделі;
– непроникна, клеюча прокладка (30 мм х 10 см) зроблена з чорного поролону EPDM (анти окислювальна, анти сольвентна) з високим рівнем еластичності для ущільнення та пристосування до клапана на бетонній поверхні;
– прокладка 13х 7х 16 мм зроблена з чорної гуми EPDM (анти окислювальна, анти сольвентна) з блокуючим пазом в товстому шарі елемента квадратного профілю, з шпонками і подвійною легкозамінною, дротяною арматурою; еластична прокладка гарантує ідеальну гідроізоляцію, особливо на етапі зворотного потоку;
– болти для підняття плит, виготовлені з нержавіючої сталі A4 AISI 316 з 16 мм отвором.
Мод. KRX 15 DN від 100 до DN 500 мм
| d, mm | A*A, mm | B, mm |
| 110 | 260 | 68 |
| 125 | 275 | 70 |
| 160 | 310 | 71 |
| 200 | 350 | 74 |
| 250 | 400 | 76 |
| 315 | 465 | 79 |
| 400 | 550 | 84 |
| 500 | 650 | 90 |
KRX 610 DN від 600 до DN 1000 мм
| d, mm | A*A, mm | B, mm |
| 630 | 830 | 96 |
| 710 | 910 | 99 |
| 800 | 1000 | 102 |
| 900 | 1100 | 105 |
| 1000 | 1200 | 108 |
KRX 1120 DN від 1000 до DN 2000
| d, mm | A*A, mm | B, mm |
| 1100 | 1300 | 111 |
| 1200 | 1400 | 114 |
| 1400 | 1700 | 120 |
| 1500 | 1800 | 123 |
| 1600 | 1900 | 126 |
| 1800 | 2100 | 132 |
| 2000 | 2300 | 138 |
Мод. KRX , DN від 100 до DN 2000 мм.
Клапани під нахилом полегшують закриття плити, призначеної для установки на цементні стіни. Клапан складається з квадратного корпусу з отворами кріплення, а також з легкозамінної круглої пластини з шарнірною системою руху.
Шарнірна система складається з 3 зварювальних втулок, розташованих на пластині, з’єднаних болтами M10x120 з нержавіючої сталі A2 AISI 304, з самоблокувальною гайкою до 3-х U – образних зварених профілів у замкнутій секції.
Клапан виготовлений повністю із нержавіючої сталі 30/10 A2 AISI 304.
| d, mm | A*A, mm | B, mm |
| 110 | 260 | 68 |
| 125 | 275 | 70 |
| 160 | 310 | 71 |
| 200 | 350 | 74 |
| 250 | 400 | 76 |
| 315 | 465 | 79 |
| 400 | 550 | 84 |
| 500 | 650 | 90 |
| 630 | 830 | 96 |
| 710 | 910 | 99 |
| 800 | 1000 | 102 |
| 900 | 1100 | 105 |
| 1000 | 1200 | 108 |
| 1100 | 1300 | 111 |
| 1200 | 1400 | 114 |
| 1400 | 1700 | 120 |
| 1500 | 1800 | 123 |
| 1600 | 1900 | 126 |
| 1800 | 2100 | 132 |
| 2000 | 2300 | 138 |







